Podpisanie umowy na realizację zadania pn. „Budowa remizo-świetlicy w Leżachowie"
22 września 2022 r. w Urzędzie Miasta i Gminy w Sieniawie odbyło się podpisanie umowy na realizację zadania pn. „BUDOWA REMIZO-ŚWIETLICY W OSP W LEŻACHOWIE”.
Wykonawcą zadania będzie Przedsiębiorstwo Wielobranżowe „ZAWPOL” Sp. z o.o. Koszt inwestycji to 1 938 077,86 zł, z czego 1 350 000,00 zł stanowi dofinansowanie z Rządowego Funduszu Polski Ład: Programu Inwestycji Strategicznych.
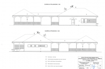
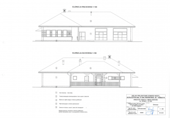
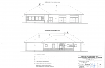
Remizo-świetlica wybudowana zostanie na działce nr ewid. 454/2, obok kościoła i Orlika. Będzie budynkiem parterowym. Powierzchnia użytkowa obiektu to 342,14 m², a pow. zabudowy to 388,95 m². Kubatura budynku to 1927,83 m³.
Budynek będzie posiadał dwa boksy garażowe dla samochodów ratowniczo-gaśniczych, znajdzie się w nim ogólnodostępna świetlica, sanitariaty, aneks kuchenny, kotłownia i łącznik z wiatą taneczną.
Wykonawca na realizację inwestycji będzie miał 310 dni od podpisania umowy.
***
Budowa remizo-świetlicy jest zadaniem bardzo oczekiwanym przez miejscową społeczność, szczególnie strażaków z miejscowej OSP. Obiekt zastąpi starą i wysłużoną strażnicę, odbiegającą od obecnych wymogów i standardów. Posłuży strażakom, ale i będzie miejscem spotkań kulturalnych, integracyjnych czy innych wydarzeń okolicznościowych.
[22.09.2022 r.]

